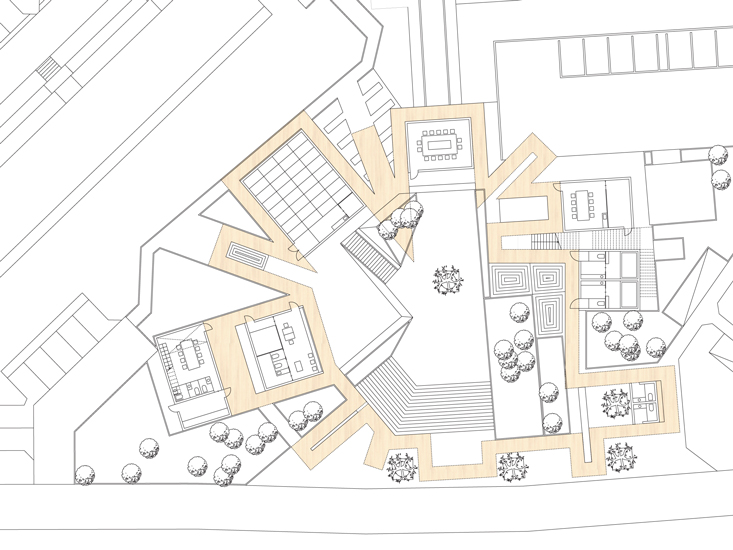
神奈川県横浜市にある洋光台北団地。
団地の入り口では集会所を囲むように、住人が休んだり、待ち合わせしたり、運動したり。
既にここにある活動を大切にしながら、もっとたくさんの人に楽しんでもらえるように、
この敷地の特徴であった”様々な活動を支える道”に手を加えることにしました。
歯車状の道は周辺から集会状へと人を引き込みます。
また、道の”ひだ”によってつくられた様々な形の居場所は、それぞれの交流に応えるように整えました。
あっちで過ごす人、こっちで過ごす人々、、いろいろな距離感を選択しながら集まることができます。
歯車をまわすようにして、
この道で巻き起こる人々の活動が、洋光台団地での生活をより豊かにする、
【団地の未来のための歯車道】を提案します。
【団地の未来のための歯車道】
団地の未来プロジェクト 建築アイデアコンペティション | 応募案 | 集会所 | 350㎡(屋内部分) | 日本/神奈川県/横浜市| UR都市機構 | 2015 DECEMBER

